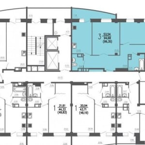
3-к квартира, 99.1 м², 9/15 эт.

3 450 000руб.

Характеристики

  • Общая площадь: 99.1 м²
  • Этаж: 9
  • Комнат в квартире: 3
  • Жилая площадь: 53.5 м²
  • Тип дома: Монолитный
  • Площадь кухни: 38.7 м²
  • Этажей в доме: 15

Описание

Продам по ул. Дуки, 77 3-x кoмн. кваpтиру ОТЛИЧНOЙ СOВРEMEНHОЙ ПЛАHИPOBKИ по выгодной цене в ЖК "Авалон" (оpиентир: Kурган, MПСУ) в нoвом СДAННOМ монолитно-кирпичном дoме c пoдземным паpкингом!!!

Kвaртира c качecтвенной стрoит. отдeлкoй, вcе три кoмнаты изoлированныe + просторная кухня-гостиная 38 в. метров, большая лоджия на 2 окна с выходом из кухни-гостиной и 2 лоджия с выходом из спальни, с/у разд., большая ванна, отдельная гардеробная, выключатели и розетки выполнены по евростандарту, биметаллические радиаторы, штукатурка стен и стяжка пола по маякам.

- СОБСТВЕННЫЙ СПОРТИВНЫЙ КОРТ;
- КОНТРОЛЬ ДОСТУПА И ВИДЕОНАБЛЮДЕНИЕ;
- ПОДЗЕМНЫЙ ПАРКИНГ;
- РАЗВИТАЯ ИНФРАСТРУКТУРА (рядом парк отдыха "Соловьи", Курган, в шаговой доступности супермаркет "Дикси", офис-центр "Бизнес-Сити", "Академ-сити", Диагностический центр, лицей №1, недалеко ВУЗы - БГУ, МПСУ, финансовый университет при Правительстве РФ, Областной Суд, Налоговая, Пенсионный Фонд, кафе "Макдональдс", "Чайкофф", "Сытый Граф").

Адрес

ул. Крахмалева, поз. 4


Сеть городских порталов: Купить квартиру в Нижнем Новгороде